Description
Given the highly competitive nature of the local and international business environment, Satjay Bridgetown Centre offers a unique opportunity to provide an expansive area (20,000 sq. ft.) of air-conditioned commercial office and retail space in its modern two storied complex in the heart of Bridgetown, located behind Cave Shepherd building on Victoria Street, encompassing a frontage of more than Cave Shepherd and Norman Center combined.
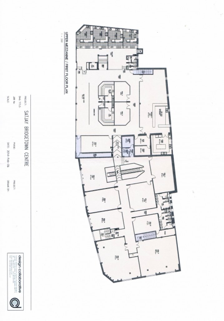
The available 20,000 sq. ft. area on two floors consist of the following:
Ground Floor - 2,500 sq. ft.
Lower Mezzanine - 1,897 sq. ft.
First Floor - 15,073 sq. ft.
Total: 19,470 sq. ft.
The annual rental rate is $40.00 per sq. ft. or $3.33 per sq. ft. per month, with the Tenant being responsible for air-conditioning, electricity, water and gas.
The tenant would benefit from Duty Free on Leasehold improvements, subject to the provisions of the Special Development Area Act whereby all imported materials used for Leasehold improvements within the leased premises shall benefit from concessions. The Landlord shall provide certificates to the Comptroller of Customs based on invoices and shipping documents provided by the tenant. The landlord is prepared to assist in some small way in defraying a small portion of the set up leasehold improvements via a credit against the rent over time.
This is an excellent opportunity for Offshore Banks, Insurance companies, Government agencies and offices, enterprises involved in furniture or electronics and appliance sales, and other retail clothing or hardware items.
DL/LM
The available 20,000 sq. ft. area on two floors consist of the following:
Ground Floor - 2,500 sq. ft.
Lower Mezzanine - 1,897 sq. ft.
First Floor - 15,073 sq. ft.
Total: 19,470 sq. ft.
The annual rental rate is $40.00 per sq. ft. or $3.33 per sq. ft. per month, with the Tenant being responsible for air-conditioning, electricity, water and gas.
The tenant would benefit from Duty Free on Leasehold improvements, subject to the provisions of the Special Development Area Act whereby all imported materials used for Leasehold improvements within the leased premises shall benefit from concessions. The Landlord shall provide certificates to the Comptroller of Customs based on invoices and shipping documents provided by the tenant. The landlord is prepared to assist in some small way in defraying a small portion of the set up leasehold improvements via a credit against the rent over time.
This is an excellent opportunity for Offshore Banks, Insurance companies, Government agencies and offices, enterprises involved in furniture or electronics and appliance sales, and other retail clothing or hardware items.
DL/LM
Details
City:
Bridgetown
Listing Type:
Non-Exclusive
Bathrooms:
0
Construction Type:
Concrete
Areas
Covered Area:
1,897ft²